preloader image
  • Nos agences

  • Contact

  • Actualité

  • De 65m2 à 115m2
    De 65m2 à 115m2
  • 2 à 3 à 4 chambres
    2 à 3 à 4 chambres
  • Garage accolé
  • Architecte
  • Terrasse bétonnée

Classe énergie

  • A
  • B
  • C
  • D
  • E
  • F
  • G

Ges

  • A
  • B
  • C
  • D
  • E
  • F
  • G

Descriptif du modèle

Cette maison contemporaine, pensée pour les terrains étroits est étonnante de modernité.

Son enduit bi-colore soulignant ses différents volumes et hauteurs la rendent véritablement exclusive et attractive !

Personnalisable, elle vous est proposée dans plusieurs plans allant de 2 à 4 chambres.

 

Options les plus vendues sur ce modèle

  • Menuiseries Aluminium
  • Crépis coloré

Prix de votre modèle

Veuillez indiquer votre code postal pour connaitre le prix de ce modèle

Obtenir des informations pour faire construire

Formulaire contact principa

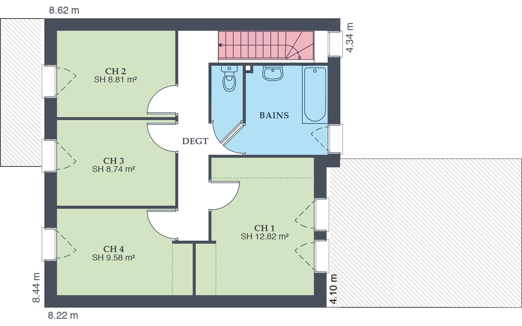
Plans du modèle

  • De 65m2 à 115m2
    De 65m2 à 115m2
  • 2 à 3 à 4 chambres
    2 à 3 à 4 chambres
  • Garage accolé
  • Architecte
  • Terrasse bétonnée

Vue 3D du modèle

Visite Virtuelle de cette maison

Modèle similaire

Maison contemporaine

  • Sous-sol
  • Garage intégré
  • Mezzanine

Maison contemporaine

  • Architecte
  • Garage intégré

Maison contemporaine

  • Demi-niveau
  • Mezzanine
  • Balcon
  • Suite Parentale

Maison contemporaine

  • Garage accolé
  • Architecte
  • Enduit bi-ton

Maison traditionnelle

  • Plan en U
  • Suite Parentale
  • Double garage
  • Luminosité

Maison contemporaine

  • Architecte
  • Garage accolé
  • Enduit bi-ton

Vous souhaitez configurer votre future maison ? Découvrez notre configurateur en ligne